Používáme cookies k optimalizaci našich webových stránek a našich služeb. Další informace o cookies najdete zde.

Nastavení


Prodej domu, Chotouň
 

Popis nemovitosti

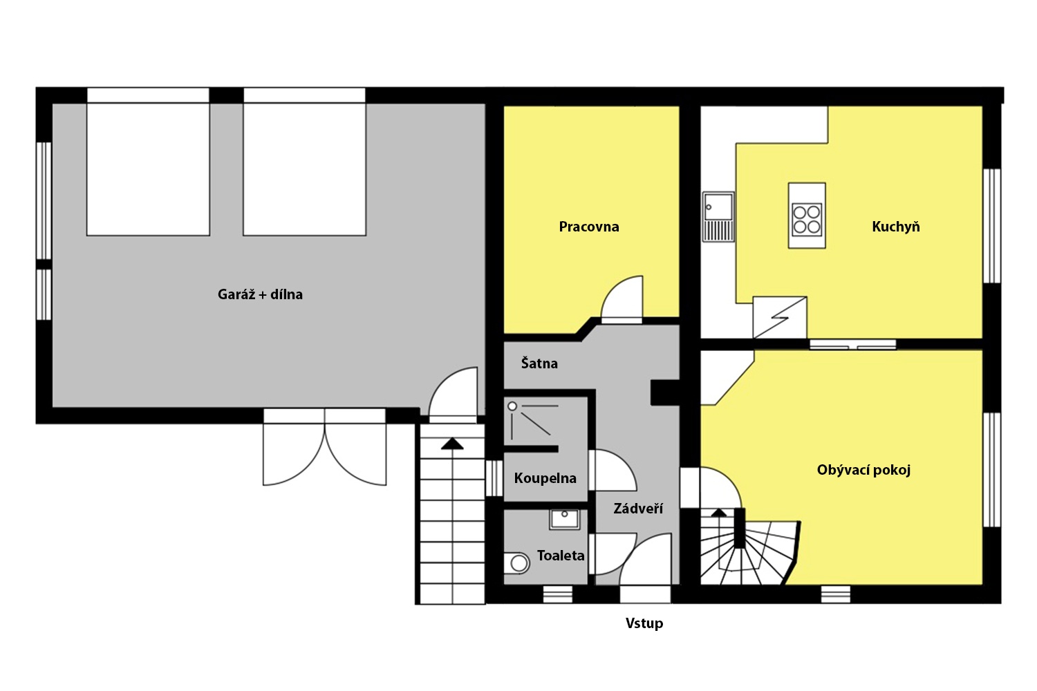
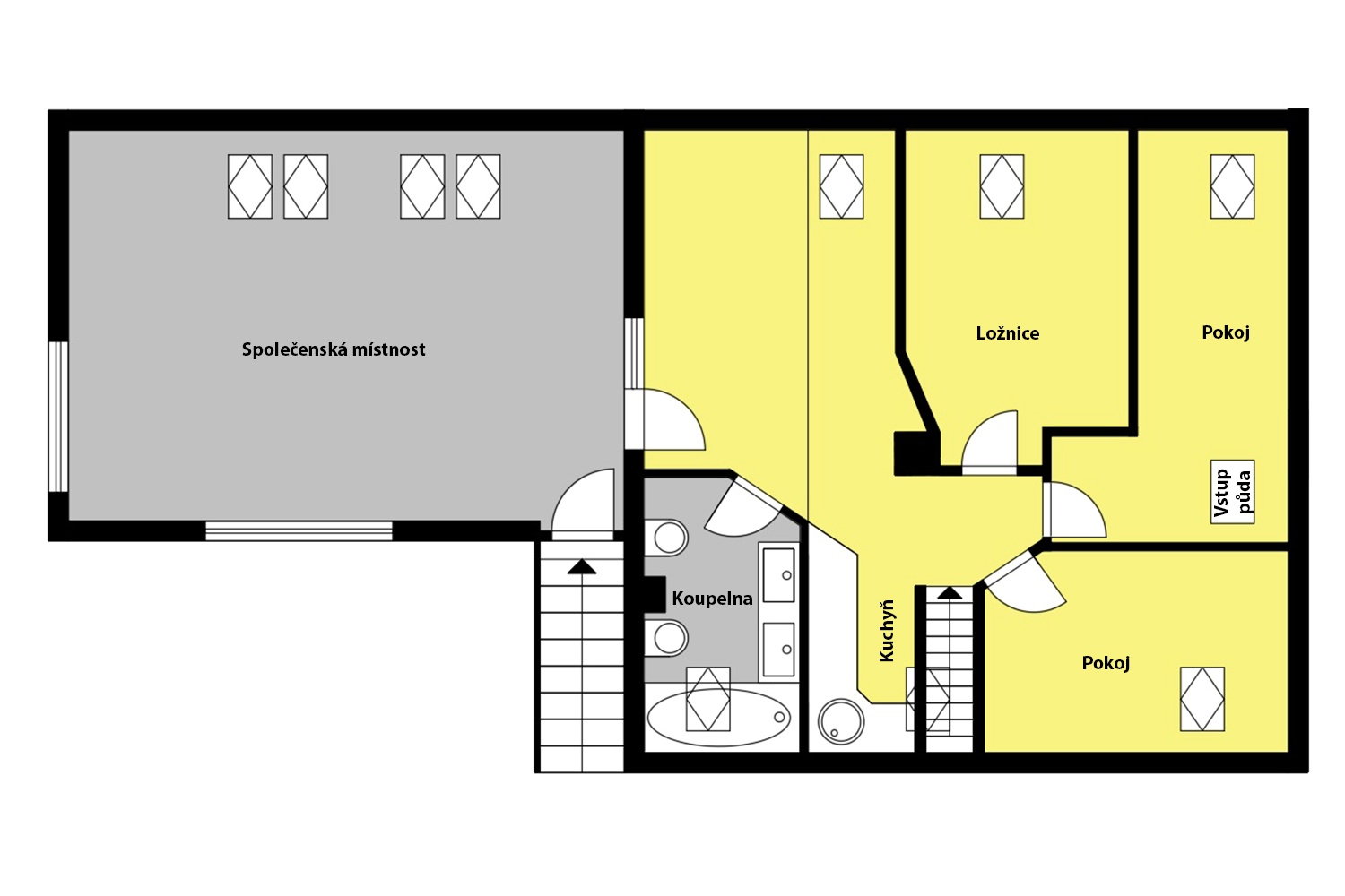
Nabízíme k prodeji prostorný rodinný dům o dispozici 5+1 s užitnou zastavěnou plochou 147 m², který se nachází na udržovaném pozemku o celkové výměře 789 m². Součástí pozemku je i samostatný výměnek (zastavěná plocha 15 m²), který je možné plnohodnotně využívat k bydlení.

Zahrada nabízí naprosté soukromí a pohodu – je plná okrasných a ovocných stromů, s několika možnostmi posezení – buď na terase, nebo pod zastřešenou pergolou s krbem a grilem. O pravidelnou péči o trávník se stará automatická sekačka a zavlažování.

Dům je vybaven dvojgaráží s dílnou a má velkou výhodu dvou vjezdů na pozemek.

Vytápění zajišťuje krbová vložka s rozvody tepla (průduchy), doplněná o přímotopy a podlahové topení. Ve výměnku jsou dále kamna na tuhá paliva.

V patře se nachází samostatná místnost s vířivkou (wellness), připravená také pro domácí posilovnu s vlastním vstupem.

Součástí nemovitosti jsou tři samostatné kuchyně, koupelny a dva sklepy (23,4 m²). Střecha je z betonové tašky a byla kompletně renovována před 10 lety. V podkroví jsou nová střešní okna Velux s trojskly. K dispozici je i dostatek úložného prostoru.

Dům je napojen na elektřinu, obecní vodovod a kanalizaci. Na pozemku se nachází vlastní kopaná studna cca 7 m hluboká, která byla čištěna v loňském roce. Výměnek je co se vaření týče napojen na plynovou bombu.

Občanská vybavenost a lokalita:
V blízkém okolí najdete veškerou základní občanskou vybavenost – školu, školku, obchod, poštu i lékaře. Lokalita je ideální pro rodinné bydlení, s dobrou dopravní dostupností do většího města i krásnou přírodou v dosahu.

Nemovitost lze financovat pomocí hypotéky, kterou Vám rádi pomůžeme vyřídit.

V případě zájmu o prohlídku nebo více informací mě neváhejte kontaktovat.

Videoprohlídka

3D scan

Michal Zadražil

Jmenuji se Michal Zadražil a v realitním oboru se pohybuji již více než 15 let.

Jsem součástí týmu kanceláře RE/MAX a mou hlavní specializací je Kolín a jeho okolí, ale díky zkušenostem a zázemí renomované značky úspěšně realizuji obchody po celé České republice.

Realitní činnost pro mě není jen práce, ale především služba lidem.Zakládám si na osobním přístupu, férovém jednání a individuálním řešení každé zakázky.

Každého klienta vnímám jako partnera a mojí prioritou je, aby všechny strany obchodu – kupující, prodávající i zprostředkovatelé – byly se spoluprací maximálně spokojené.Věřím, že právě spokojenost na všech stranách je základem úspěšného a hladkého obchodu.

Nebojím se výzev a v každé transakci hledám cesty, jak najít nejlepší možné řešení.Ať už prodáváte, kupujete nebo hledáte vhodnou investici, jsem připraven vám být spolehlivým partnerem na každém kroku vaší realitní cesty.


Michal Zadražil

Kontaktní formulář

Stáhnout PDF